Индивидуальные проекты

Индивидуальное проектирование домов: почему это лучший выбор для комфортной жизни в Ленинградской области

Когда человек задумывается о строительстве собственного дома, один из первых вопросов — выбрать готовый проект или заказать индивидуальное проектирование. На первый взгляд готовые решения кажутся проще и дешевле, но на практике именно индивидуальный проект дома позволяет создать пространство, полностью соответствующее образу жизни, участку и климатическим условиям региона. Особенно это актуально для строительства в Санкт-Петербургеи Ленинградской области, где важны не только эстетика, но и техническая грамотность решений.

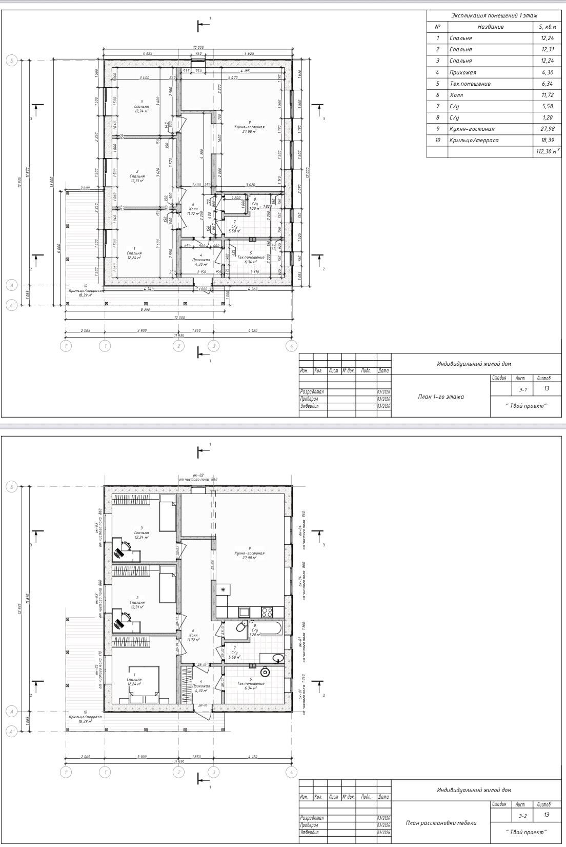
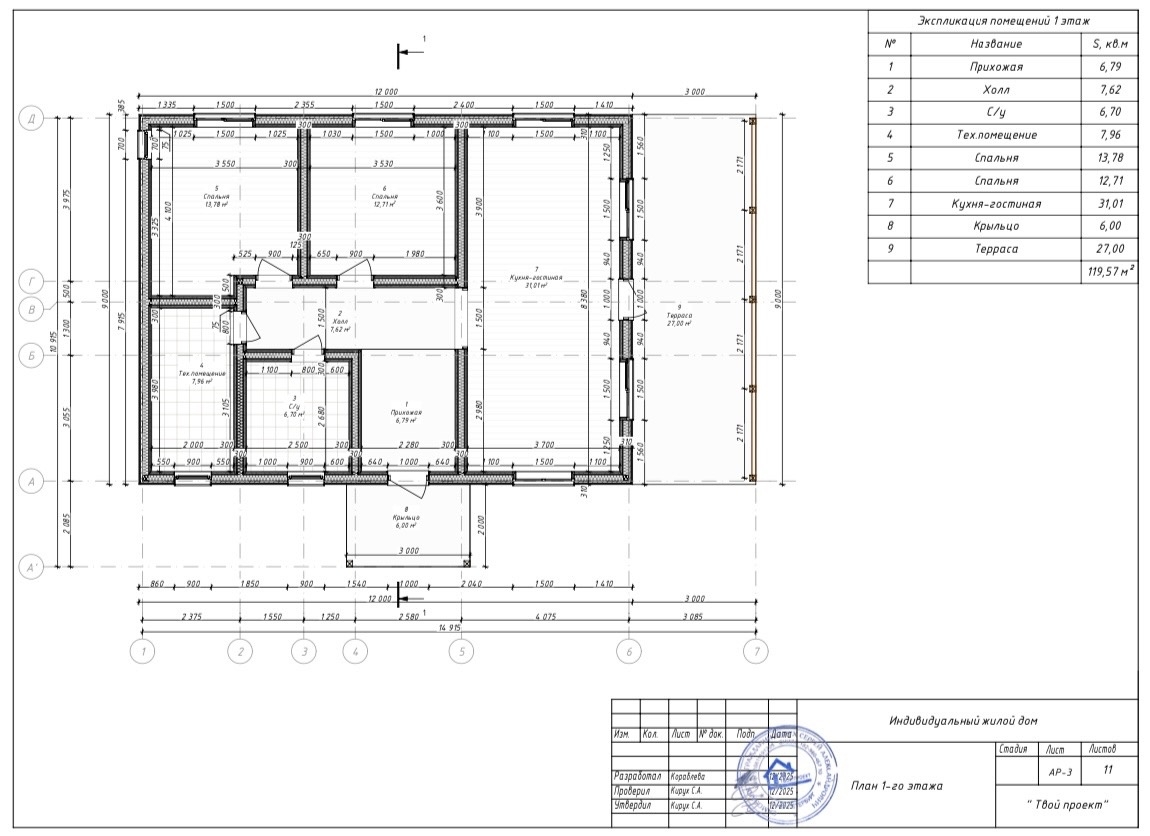
Индивидуальное проектирование домов — это не просто “нарисовать планировку”. Это комплексная работа, в которой учитывается всё: особенности участка, уровень грунтовых вод, ориентация по сторонам света, ветровые нагрузки, потребности семьи, бюджет и даже сценарии жизни на годы вперед. В результате вы получаете не типовой дом, а продуманное пространство,где каждая деталь работает на комфорт.

Одним из главных преимуществ индивидуального проекта является возможность адаптации дома под конкретный участок. В Ленинградской области участки часто имеют сложный рельеф, особенности грунта или ограничения по застройке. Готовые проекты не учитывают этих нюансов, из-за чего приходится вносить изменения уже в процессе строительства, что приводит к дополнительным расходам. Индивидуальный проект изначально создается с учетом всех параметров, что позволяет избежать ошибок и оптимизировать бюджет.

Не менее важно, что индивидуальное проектирование позволяет учитывать реальные потребности семьи. В типовых проектах часто присутствуют решения, которые либо не используются, либо неудобны в повседневной жизни. Например, неудачное расположение кухни, недостаток мест хранения или неправильное зонирование. При разработке индивидуального проекта все эти моменты прорабатываются заранее: сколько нужно спален, нужна ли отдельная гардеробная, как будет организовано пространство кухни-гостиной, где разместить технические помещения. В результате дом становится действительно удобным, а не просто красивым накартинке.

Еще одно важное преимущество — гибкость в выборе технологии строительства. Индивидуальный проект может быть реализован как в каркасной технологии, так и из газобетона. Это позволяет подобрать оптимальное решение с учетом бюджета, сроков и требований к дому. Например, если важна скорость строительства — подойдет каркасный дом, если приоритет капитальность и долговечность — выбирают дом из газобетона. При этом проект сразу адаптируется под выбранную технологию, что исключает переделки и технические ошибки.

С точки зрения финансов индивидуальный проект также часто оказывается более выгодным, чем кажется. Да, его разработка требует вложений, но за счет точных расчетов и отсутствия переделок в процессе строительства удается избежать лишних расходов. Вы заранее понимаете, сколько будет стоить строительство дома под ключ, какие материалы будут использоваться и какие этапыпредстоят. Это особенно важно для тех, кто хочет контролировать бюджет и избежать неприятных сюрпризов.

Кроме того, индивидуальный проект — это возможность создать дом, который будет отражать ваш стиль и образ жизни. Вы сами выбираете архитектуру, внешний вид, планировку, материалы и детали. Такой дом не будет похож на соседние, он станет уникальным пространством, в котором приятно жить. Для многих это становится ключевым фактором, ведь загородный дом — это не просто жилье, а место, где проходит большая часть жизни.

Компания "Твой проект" является партнёром строительной компании «Новый Дом» и предоставляет услугу индивидуального проектирования домов под ключ в Санкт-Петербурге и Ленинградской области. Специалисты компании сопровождают клиента на всех этапах — от идеи и первых эскизов до готового проекта, полностью подготовленного к строительству. Учитываются все особенности участка, пожелания заказчика итехнические требования, что позволяет создать дом, идеально подходящий для постоянногопроживания.

В рамках услуги индивидуального проектирования вы получаете не просто план дома, а полноценный рабочий проект, включающий архитектурные решения, конструктивную часть и рекомендации по строительству. Это позволяет максимально точно реализовать задуманное и избежать ошибок на этапе стройки. При необходимости проект адаптируется под каркасную технологию или строительство из газобетона, в зависимости от выбранного формата дома.

Индивидуальный проект — это инвестиция в комфорт, надежность и спокойствие. Это возможность сразу сделать правильно, без компромиссов и переделок. И если вы планируете строительство дома под ключ в Ленинградской области или Санкт-Петербурге, такой подход становится не просто желательным, а действительно разумным решением.

Подробнее о компании, проектах и условиях заказа в группе ВКонтакте "Твой проект"

Для улучшения работы сайта компании «Нью Дом» может собирать данные, используя файлы cookie и сервис «Яндекс Метрика». Это соответствует Политике в отношении обработки персональных данных ООО «Нью Дом». Продолжая работу с сайтом, вы даёте согласие на обработку персональных данных. Файлы cookie можно отключить в настройках вашего браузера.

Обращаем ваше внимание на то, что данный интернет-сайт, а также вся информация о товарах и ценах, предоставленная на нём, носит исключительно информационный характер и ни при каких условиях не является публичной офертой, определяемой положениями Статьи 437 Гражданского кодекса Российской Федерации.

Общество с ограниченной ответственностью «Нью Дом»  ИНН: 7802925290 | КПП: 780201001 | ОГРН: 1227800061345
Юридический адрес: 194292, Санкт-Петербург, 6-Й Верхний пер, дом № 12, литера А помещ.1
Телефон: +7 (812) 309-40-69 | E-mail: 3094069@mail.ru