Дом одноэтажный D 177-1

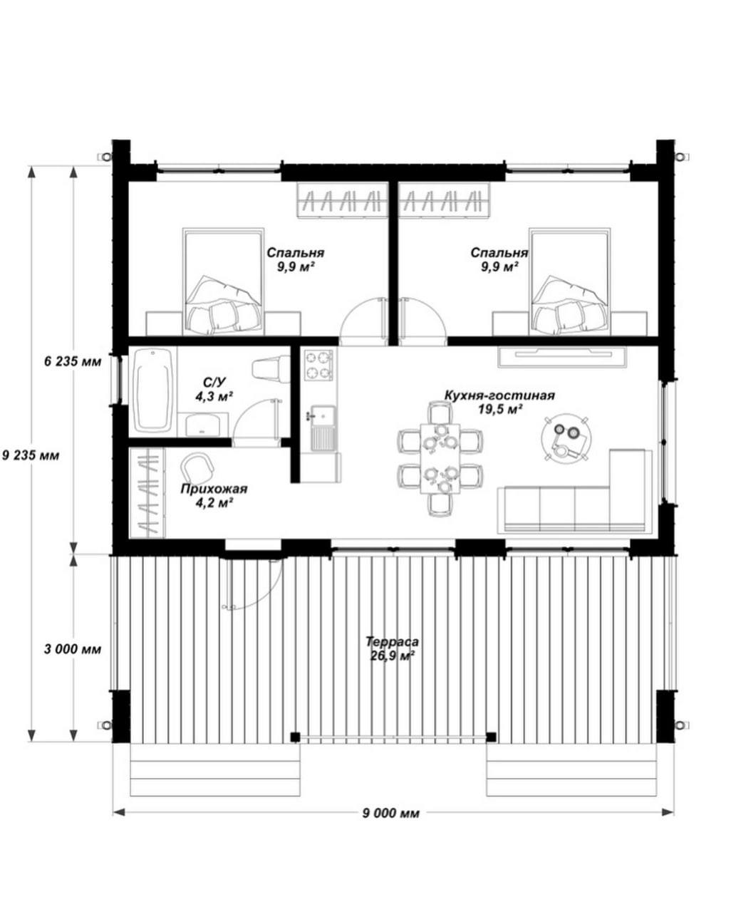
Компактный и уютный дом с рациональной планировкой, ориентированной на комфортное проживание. В доме предусмотрены две изолированные спальни, обеспечивающие приватность и спокойствие, а также просторная кухня-гостиная, объединяющая зону приготовления пищи, столовую и место для отдыха. При входе организована удобная прихожая с местами для хранения, рядом расположен санузел, что повышает повседневный комфорт. Большая терраса примыкает к общей зоне и расширяет жилое пространство дома, создавая идеальное место для отдыха на свежем воздухе и приема гостей. Дом отлично подойдет для небольшой семьи, загородного отдыха или постоянного проживания, сочетая функциональность, эргономику и современный подход к планировке.

Характеристики

Размеры дома

9,2х9,0

Площадь

74.7 м2

Этажность

1

Количество комнат

3

Количество с/у

1

Терраса

есть

Гараж

нет

Цены

Силовой каркас стандарт

  1 434 000 ₽

Газобетон стандарт

  2 129 000 ₽

Предоплата 0%
Цены указаны с учетом доставки и сборки на участке.
Без стоимости фундамента!

Возможны изменения проекта

Работаем с ипотекой

Работаем с мат.капиталом

Варианты комплектации каркасного дома


Стандарт

Комфорт

Улучшенный

Перепланировка дома

Сборка

Архитектурное решение

Доставка (до 50 км от КАД)

Разгрузка (не более 20 м)

Гидроизоляция

Укладывается на фундамент 

Укладывается на фундамент 

Укладывается на фундамент 

Обвязка нижнего ряда

Брус камерной сушки

150х150х 6000мм

Сухой строганный брус 145х145х6000мм

Сухой строганный брус 145х195х 6000мм

Силовая конструкция каркаса

Сухая строганная доска 45х145х 6000мм, с шагом 590мм

Сухая строганная доска 45х145х 6000мм, с шагом 590мм

Сухая строганная доска 45х195х 6000мм, с шагом 590мм

Обвязка нижнего ряда

Брус камерной сушки

150х150х 6000мм

Сухой строганный брус 145х145х 6000мм

Сухой строганный брус 145х195х 6000мм

Раскосы усиления

Сухая строганная доска 45х145х 6000мм, с шагом 590мм

Сухая строганная доска 45х145х 6000мм, с шагом 590мм

Сухая строганная доска 45х195х 6000мм, с шагом 590мм

Половые лаги, балки перекрытия

Брус камерной сушки

150х150х 6000мм

Сухой строганный брус 145х145х 6000мм

Сухой строганный брус 145х195х 6000мм

Стропильная система

Сухая строганная доска 45х195х 6000мм, с шагом 590мм

Сухая строганная доска 45х195х 6000мм, с шагом 590мм

Сухая строганная доска 45х195х 6000мм, с шагом 590мм

Перегородки не капитальные

Сухая строганная доска 45х95х 6000мм, с шагом 590мм

Сухая строганная доска 45х95х 6000мм, с шагом 590мм

Сухая строганная доска 45х95х 6000мм, с шагом 590мм

Перегородки несущие

Сухая строганная доска 45х145х 6000мм, с шагом 590мм

Сухая строганная доска 45х145х 6000мм, с шагом 590мм

Сухая строганная доска 45х145х 6000мм, с шагом 590мм

Контр-обрешётка

Сухой строганный брусок 45х45х 6000мм

Сухой строганный брусок 45х45х 6000мм

Сухой строганный брусок 45х45х 6000мм

Обрешетка и черновой пол

Сухая строганная доска 20х95х 6000мм

Сухая строганная доска 20х95х 6000мм

Сухая строганная доска 20х95х 6000мм

Утепление

Нет

Базальтовая плита POCKWOOL (БАТТС) 150 мм.плот. 37кг/м2

Базальтовая плита POCKWOOL (БАТТС) 200 мм.плот. 37кг/м2

Диффузионная мембрана пола и стен

EUROTOP №35

плотность 135г/м2

EUROTOP №35

плотность 135г/м2

EUROTOP №35

плотность 135г/м2

Пароизоляция

Нет

DELTA DAWI 200

 Плотность 180г/м2

скотч Delta Inside Band

DELTA DAWI 200

Плотность 180г/м2

скотч Delta Inside Band

Наружная отделка по контр обрешётке

Нет

Имитация под брус 21 х 145/175мм (Камерной сушки )

Карельский проф.

Имитация под брус 21 х 145/175мм (Камерной сушки )

Карельский проф.

Внутренняя отделка стен

Нет

Вагонка (А) камерной сушки

Имитация под брус 21 х 145/175мм (Камерной сушки )

Карельский проф.

Полы

Нет

Влагостойкий Quick Deck толщиной 16мм строганный брусок 45х45мм 300 шаг

Влагостойкий Quick Deck толщиной 22мм строганный брусок 45х45мм 300 шаг

Кровля

Металлочерепица 0,45мм

(супер монторей)

Металлочерепица 0,45мм

(супер монторей)

Металлочерепица 0,5мм

(супер монторей)

Диффузионная мембрана кровли

EUROTOP №35

плотность 135г/м2

EUROTOP №35

плотность 135г/м2

EUROTOP №35

плотность 135г/м2

Наружная дверь

Нет

Металлическая с двумя замками, утеплённая Изотерма (Россия)

Металлическая с двумя замками, утеплённая Изотерма (Россия)

Внутренние двери

Нет

Нет

Нет

Лестница

Нет

С перилами, ступенями, балясинами и тетивой (клееная)

С перилами, ступенями, балясинами и тетивой

Антисептирование 

Обвязка и черновой пол,

огне-биосоставом (зелест)

Обвязка и черновой пол,

огне-биосоставом (зелест)

Обвязка и черновой пол,

огне-биосоставом (зелест)

Терраса (пол, перила)

Нет

Обрезная строганая доска 35х95х 6000мм

Обрезная строганая доска 35х95х 6000мм

Водосточная система

Нет

Пластик (DOCKE)

Пластик (DOCKE)

Крепёж (метизы)

Металлический оцинкованный

Металлический оцинкованный

Металлический оцинкованный

Окна

Нет

Стеклопакеты Rehau Delight

Белый металлопластиковый профиль 70мм, двухкамерные

Стеклопакеты Rehau Delight

Белый металлопластиковый профиль 70мм, двухкамерные

Свесы кровли

Не подшиваются

Подшиваются сухой строганной доской 20х95мм

Подшиваются сухой строганной доской 20х95мм

Высота этажа

Первый этаж -  2,50м

Второй этаж -  2,40м

Первый этаж -  2,50м

Второй этаж -  2,40м

Первый этаж -  2,75м

Второй этаж -  2,50м

Варианты комплектации дома из газобетона


Стандарт

Комфорт

Улучшенный

Перепланировка дома

Сборка

Архитектурное решение

Доставка (до 50 км от КАД)

Разгрузка (не более 20 м)

Гидроизоляция

Укладывается на фундамент

и арма-пояс (в два слоя)

Укладывается на фундамент

и арма-пояс (в два слоя)

Укладывается на фундамент

и арма-пояс (в два слоя)

Наружные стены газобетон

Стандарт 375мм (толщина) плотность D 400/500

Стандарт 375мм (толщина) плотность D 400/500

Стандарт 375мм (толщина) плотность D 400/500

Перегородки первого этажа (газобетон)

Газобетон D500/400 плотность

 150/250 мм толщина.

Газобетон D500/400 плотность

 150/250 мм толщина.

Газобетон D500/400 плотность

 150/250 мм толщина.

Перегородки второго этажа каркасные (газобетон)

Сухая строганная доска 45х195х 6000мм, с шагом 590мм

Газобетон D500/400 плотностью  
150/250 мм толщиной

Газобетон D500/400 плотностью  
150/250 мм толщиной

Отделка фасада

Нет

Нет

С наружной отделкой

Окна и утепление кровли

Нет

Стеклопакеты Rehau Delight

Белый металлопластиковый профиль 70мм, двухкамерные

Стеклопакеты Rehau Delight

Белый металлопластиковый профиль 70мм, двухкамерные

Утепление

Нет

Утепление кровли 200мм

Утепление кровли 200мм

Кровельный материал

Металлочерепица 0,5мм,

 цвет на выбор (Супер-Монторей )

Металлочерепица 0,5 мм,

 цвет на выбор (Супер-Монторей )

Металлочерепица 0,5мм,

 цвет на выбор (Супер-Монторей )

Диффузионная мембрана кровли

EUROTOP №35

 плотность 135г/м2

EUROTOP №35

 плотность 135г/м2

EUROTOP №35

 плотность 135г/м2

Верхняя обвязка (Арма пояс)

Заливается бетоном М300 в U-блок, вяжется арматура 10мм

Заливается бетоном М300 в U-блок, вяжется арматура 10мм

Заливается бетоном М300 в U-блок, вяжется арматура 10мм

Перемычки

Оконные и дверные армированные (заводские 100/150/200)

Оконные и дверные армированные (заводские 100/150/200)

Оконные и дверные армированные (заводские 100/150/200)

Мауэрлат

Сухой строганный брус 45/145х145/195х 6000мм

Сухой строганный брус 45/145х145/195х 6000 мм

Сухой строганный брус 45/145х145/195х 6000мм

Стропильная часть

Сухая строганная доска 45х195х 6000мм, с шагом 590мм

Сухая строганная доска 45х195х 6000мм, с шагом 590мм

Сухая строганная доска 45х195х 6000мм, с шагом 590мм

Контробрешётка

Сухой строганный брусок 45х45х 6000мм

Сухой строганный брусок 45х45х 6000мм

Сухой строганный брусок 45х45х 6000мм

Обрешётка

Сухая строганная доска 20х95х 6000мм

Сухая строганная доска 20х95х 6000мм

Сухая строганная доска 20х95х 6000мм

Армирование стен и перегородок

Каждый третий ряд армируется, арматурой 8 мм в два прутка

Каждый третий ряд армируется, арматурой 8 мм в два прутка

Каждый третий ряд армируется, арматурой 8 мм в два прутка

Межэтажное перекрытие

Выполняются из сухой строганной доски 45х195 мм

шаг 580 мм

Монолитное перекрытие 180 мм

Монолитное перекрытие 180 мм

Высота этажа

Первый этаж -  3,0м

Второй этаж -  2,75м

Первый этаж -  3,0м

Второй этаж -  2,75м

Первый этаж -  3,0м

Второй этаж -  2,75м

Для улучшения работы сайта компании «Нью Дом» может собирать данные, используя файлы cookie и сервис «Яндекс Метрика». Это соответствует Политике в отношении обработки персональных данных ООО «Нью Дом». Продолжая работу с сайтом, вы даёте согласие на обработку персональных данных. Файлы cookie можно отключить в настройках вашего браузера.

Обращаем ваше внимание на то, что данный интернет-сайт, а также вся информация о товарах и ценах, предоставленная на нём, носит исключительно информационный характер и ни при каких условиях не является публичной офертой, определяемой положениями Статьи 437 Гражданского кодекса Российской Федерации.

Общество с ограниченной ответственностью «Нью Дом»  ИНН: 7802925290 | КПП: 780201001 | ОГРН: 1227800061345
Юридический адрес: 194292, Санкт-Петербург, 6-Й Верхний пер, дом № 12, литера А помещ.1
Телефон: +7 (812) 309-40-69 | E-mail: 3094069@mail.ru