Проект D 181-1 — это современный одноэтажный дом с выразительной архитектурой, который отлично подойдет для тех, кто планирует строительство дома под ключ в Ленинградской области и ищет стильное и функциональное решение. Лаконичный внешний вид, двускатная кровля и сочетание натуральных материалов делают дом актуальным и эстетичным. Проект может быть реализован как каркасный дом под ключ или как дом из газобетона, что позволяет выбрать подходящую технологию строительства. Просторная крытая терраса становится важной частью дома, создавая дополнительное пространство для отдыха и общения. Такой формат особенно востребован среди тех, кто рассматривает строительство загородных домов и коттеджей в Ленинградской области. Дом идеально подходит для постоянного проживания, сочетая энергоэффективность, удобство и современный подход к архитектуре. Это отличный вариант для тех, кто хочет построить частный дом под ключ с акцентом на стиль и комфорт.
Характеристики
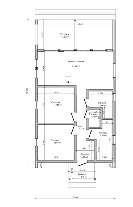
Размеры дома
12,6х6,6 м
Площадь
79.74 м2
Этажность
1
Количество комнат
3
Количество с/у
2
Терраса
есть
Гараж
нет
Цены
Силовой каркас стандарт
1 680 000 ₽
Газобетон стандарт
2 560 000 ₽
Предоплата 0%
Цены указаны с учетом доставки и сборки на участке.
Без стоимости фундамента!
Возможны изменения проекта
Работаем с ипотекой
Работаем с мат.капиталом
Стандарт
Комфорт
Улучшенный
Перепланировка дома
Сборка
Архитектурное решение
Доставка (до 50 км от КАД)
Разгрузка (не более 20 м)
Подробное описание
Стандарт
Комфорт
Улучшенный
Гидроизоляция
Укладывается на фундамент
Укладывается на фундамент
Укладывается на фундамент
Обвязка нижнего ряда
Брус камерной сушки
150х150х 6000мм
Сухой строганный брус 145х145х6000мм
Сухой строганный брус 145х195х 6000мм
Силовая конструкция каркаса
Сухая строганная доска 45х145х 6000мм, с шагом 590мм
Сухая строганная доска 45х145х 6000мм, с шагом 590мм
Сухая строганная доска 45х195х 6000мм, с шагом 590мм
Обвязка нижнего ряда
Брус камерной сушки
150х150х 6000мм
Сухой строганный брус 145х145х 6000мм
Сухой строганный брус 145х195х 6000мм
Раскосы усиления
Сухая строганная доска 45х145х 6000мм, с шагом 590мм
Сухая строганная доска 45х145х 6000мм, с шагом 590мм
Сухая строганная доска 45х195х 6000мм, с шагом 590мм
Половые лаги, балки перекрытия
Брус камерной сушки
150х150х 6000мм
Сухой строганный брус 145х145х 6000мм
Сухой строганный брус 145х195х 6000мм
Стропильная система
Сухая строганная доска 45х195х 6000мм, с шагом 590мм
Сухая строганная доска 45х195х 6000мм, с шагом 590мм
Сухая строганная доска 45х195х 6000мм, с шагом 590мм
Перегородки не капитальные
Сухая строганная доска 45х95х 6000мм, с шагом 590мм
Сухая строганная доска 45х95х 6000мм, с шагом 590мм
Сухая строганная доска 45х95х 6000мм, с шагом 590мм
Перегородки несущие
Сухая строганная доска 45х145х 6000мм, с шагом 590мм
Сухая строганная доска 45х145х 6000мм, с шагом 590мм
Сухая строганная доска 45х145х 6000мм, с шагом 590мм
Контр-обрешётка
Сухой строганный брусок 45х45х 6000мм
Сухой строганный брусок 45х45х 6000мм
Сухой строганный брусок 45х45х 6000мм
Обрешетка и черновой пол
Сухая строганная доска 20х95х 6000мм
Сухая строганная доска 20х95х 6000мм
Сухая строганная доска 20х95х 6000мм
Утепление
Нет
Базальтовая плита POCKWOOL (БАТТС) 150 мм.плот. 37кг/м2
Базальтовая плита POCKWOOL (БАТТС) 200 мм.плот. 37кг/м2
Диффузионная мембрана пола и стен
EUROTOP №35
плотность 135г/м2
EUROTOP №35
плотность 135г/м2
EUROTOP №35
плотность 135г/м2
Пароизоляция
Нет
DELTA DAWI 200
Плотность 180г/м2
скотч Delta Inside Band
DELTA DAWI 200
Плотность 180г/м2
скотч Delta Inside Band
Наружная отделка по контр обрешётке
Нет
Имитация под брус 21 х 145/175мм (Камерной сушки )
Карельский проф.
Имитация под брус 21 х 145/175мм (Камерной сушки )
Карельский проф.
Внутренняя отделка стен
Нет
Вагонка (А) камерной сушки
Имитация под брус 21 х 145/175мм (Камерной сушки )
Карельский проф.
Полы
Нет
Влагостойкий Quick Deck толщиной 16мм строганный брусок 45х45мм 300 шаг
Влагостойкий Quick Deck толщиной 22мм строганный брусок 45х45мм 300 шаг
Кровля
Металлочерепица 0,45мм
(супер монторей)
Металлочерепица 0,45мм
(супер монторей)
Металлочерепица 0,5мм
(супер монторей)
Диффузионная мембрана кровли
EUROTOP №35
плотность 135г/м2
EUROTOP №35
плотность 135г/м2
EUROTOP №35
плотность 135г/м2
Наружная дверь
Нет
Металлическая с двумя замками, утеплённая Изотерма (Россия)
Металлическая с двумя замками, утеплённая Изотерма (Россия)
Внутренние двери
Нет
Нет
Нет
Лестница
Нет
С перилами, ступенями, балясинами и тетивой (клееная)
С перилами, ступенями, балясинами и тетивой
Антисептирование
Обвязка и черновой пол,
огне-биосоставом (зелест)
Обвязка и черновой пол,
огне-биосоставом (зелест)
Обвязка и черновой пол,
огне-биосоставом (зелест)
Терраса (пол, перила)
Нет
Обрезная строганая доска 35х95х 6000мм
Обрезная строганая доска 35х95х 6000мм
Водосточная система
Нет
Пластик (DOCKE)
Пластик (DOCKE)
Крепёж (метизы)
Металлический оцинкованный
Металлический оцинкованный
Металлический оцинкованный
Окна
Нет
Стеклопакеты Rehau Delight
Белый металлопластиковый профиль 70мм, двухкамерные
Стеклопакеты Rehau Delight
Белый металлопластиковый профиль 70мм, двухкамерные
Свесы кровли
Не подшиваются
Подшиваются сухой строганной доской 20х95мм
Подшиваются сухой строганной доской 20х95мм
Высота этажа
Первый этаж - 2,50м
Второй этаж - 2,40м
Первый этаж - 2,50м
Второй этаж - 2,40м
Первый этаж - 2,75м
Второй этаж - 2,50м
Стандарт
Комфорт
Улучшенный
Перепланировка дома
Сборка
Архитектурное решение
Доставка (до 50 км от КАД)
Разгрузка (не более 20 м)
Подробное описание
Стандарт
Комфорт
Улучшенный
Гидроизоляция
Укладывается на фундамент
и арма-пояс (в два слоя)
Укладывается на фундамент
и арма-пояс (в два слоя)
Укладывается на фундамент
и арма-пояс (в два слоя)
Наружные стены газобетон
Стандарт 375мм (толщина) плотность D 400/500
Стандарт 375мм (толщина) плотность D 400/500
Стандарт 375мм (толщина) плотность D 400/500
Перегородки первого этажа (газобетон)
Газобетон D500/400 плотность
150/250 мм толщина.
Газобетон D500/400 плотность
150/250 мм толщина.
Газобетон D500/400 плотность
150/250 мм толщина.
Перегородки второго этажа каркасные (газобетон)
Сухая строганная доска 45х195х 6000мм, с шагом 590мм
Газобетон D500/400 плотностью
150/250 мм толщиной
Газобетон D500/400 плотностью
150/250 мм толщиной
Отделка фасада
Нет
Нет
С наружной отделкой
Окна и утепление кровли
Нет
Стеклопакеты Rehau Delight
Белый металлопластиковый профиль 70мм, двухкамерные
Стеклопакеты Rehau Delight
Белый металлопластиковый профиль 70мм, двухкамерные
Утепление
Нет
Утепление кровли 200мм
Утепление кровли 200мм
Кровельный материал
Металлочерепица 0,5мм,
цвет на выбор (Супер-Монторей )
Металлочерепица 0,5 мм,
цвет на выбор (Супер-Монторей )
Металлочерепица 0,5мм,
цвет на выбор (Супер-Монторей )
Диффузионная мембрана кровли
EUROTOP №35
плотность 135г/м2
EUROTOP №35
плотность 135г/м2
EUROTOP №35
плотность 135г/м2
Верхняя обвязка (Арма пояс)
Заливается бетоном М300 в U-блок, вяжется арматура 10мм
Заливается бетоном М300 в U-блок, вяжется арматура 10мм
Заливается бетоном М300 в U-блок, вяжется арматура 10мм
Перемычки
Оконные и дверные армированные (заводские 100/150/200)
Оконные и дверные армированные (заводские 100/150/200)
Оконные и дверные армированные (заводские 100/150/200)
Мауэрлат
Сухой строганный брус 45/145х145/195х 6000мм
Сухой строганный брус 45/145х145/195х 6000 мм
Сухой строганный брус 45/145х145/195х 6000мм
Стропильная часть
Сухая строганная доска 45х195х 6000мм, с шагом 590мм
Сухая строганная доска 45х195х 6000мм, с шагом 590мм
Сухая строганная доска 45х195х 6000мм, с шагом 590мм
Контробрешётка
Сухой строганный брусок 45х45х 6000мм
Сухой строганный брусок 45х45х 6000мм
Сухой строганный брусок 45х45х 6000мм
Обрешётка
Сухая строганная доска 20х95х 6000мм
Сухая строганная доска 20х95х 6000мм
Сухая строганная доска 20х95х 6000мм
Армирование стен и перегородок
Каждый третий ряд армируется, арматурой 8 мм в два прутка
Каждый третий ряд армируется, арматурой 8 мм в два прутка
Каждый третий ряд армируется, арматурой 8 мм в два прутка
Межэтажное перекрытие
Выполняются из сухой строганной доски 45х195 мм
шаг 580 мм
Монолитное перекрытие 180 мм
Монолитное перекрытие 180 мм
Высота этажа
Первый этаж - 3,0м
Второй этаж - 2,75м
Первый этаж - 3,0м
Второй этаж - 2,75м
Первый этаж - 3,0м
Второй этаж - 2,75м
Для улучшения работы сайта компании «Нью Дом» может собирать данные, используя файлы cookie и сервис «Яндекс Метрика». Это соответствует Политике в отношении обработки персональных данных ООО «Нью Дом». Продолжая работу с сайтом, вы даёте согласие на обработку персональных данных. Файлы cookie можно отключить в настройках вашего браузера.
Обращаем ваше внимание на то, что данный интернет-сайт, а также вся информация о товарах и ценах, предоставленная на нём, носит исключительно информационный характер и ни при каких условиях не является публичной офертой, определяемой положениями Статьи 437 Гражданского кодекса Российской Федерации.
Общество с ограниченной ответственностью «Нью Дом» ИНН: 7802925290 | КПП: 780201001 | ОГРН: 1227800061345
Юридический адрес: 194292, Санкт-Петербург, 6-Й Верхний пер, дом № 12, литера А помещ.1
Телефон: +7 (812) 309-40-69 | E-mail: 3094069@mail.ru